Rodinné domy na klíč

Rodinný dům typ 7

Prostorný rodinný dům situovaný do písmene „L“, kde společenská část se nachází oddělena na jedné ze stran a soukromé části pak straně druhé. Pohyb po domě je však i tak velmi jednoduchý, jelikož je vše spojeno vhodně umístěnou chodbou. Dům o dispozici 4+KK a ploše 102,46 m2 je výbornou volbou pro rodinu s dětmi, kde najde veškeré potřebné zázemí. Z obývacího pokoje je možné vyjít přímo na terasu je také možné jej zařídit i krbem.

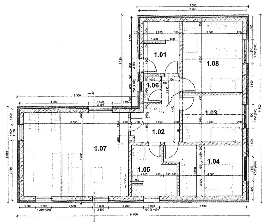
Rodinný dům typ 7 - dispozice

Dispozice 4 + kk | Zastavěná plocha 128 m2 | Užitná plocha 102,46 m2 | Rozměry domu 14,55 x 11,80 m

Výměra domu

1.01zádveří7,45 m2
1.02chodba8,80 m2
1.03pokoj11,21 m2
1.04ložnice13,85 m2
1.05koupelna7,92 m2
1.06wc1,73 m2
1.07obývací pokoj + kk34,39 m2
1.08pokoj17,10 m2

Celková užitná plocha domu

102,46 m2

Nízkoenergetický provoz

Náklady na provoz domu 2.400 Kč/měsíc
Odpor při prostupu tepla 7.25 m2⋅K/W

Hodnoty jsou orientační dle průměrných údajů ohledně topení, koupání atd.

Co je zahrnuto v ceně domu

Nízkoenergetické domy

Díky provedení výstavby a výběru kvalitních materiálů naše domy vyhovují přísným požadavkům na energetickou náročnost.

Zázemí pro rodinu

Naše domy jsou ideálním místem 4-5 členné domácnosti, které ale vyhovují požadavkům nejen mladých rodin.

Nadstandardní vybavení a služby

Naše domy již ve standardu obsahují moderní a kvalitní vybavení, které však můžete v průběhu stavby upravit dle vlastních preferencí.

Rychlost výstavby

Vzhledem ke zkušenostem a sehranosti našich pracovníků probíhá výstavba našich domů rychlostí světla.

Napište nám




    Odesláním formuláře souhlasíte s podmínkami zpracování osobních údajů


    x