Rodinné domy na klíč

Rodinný dům typ 6

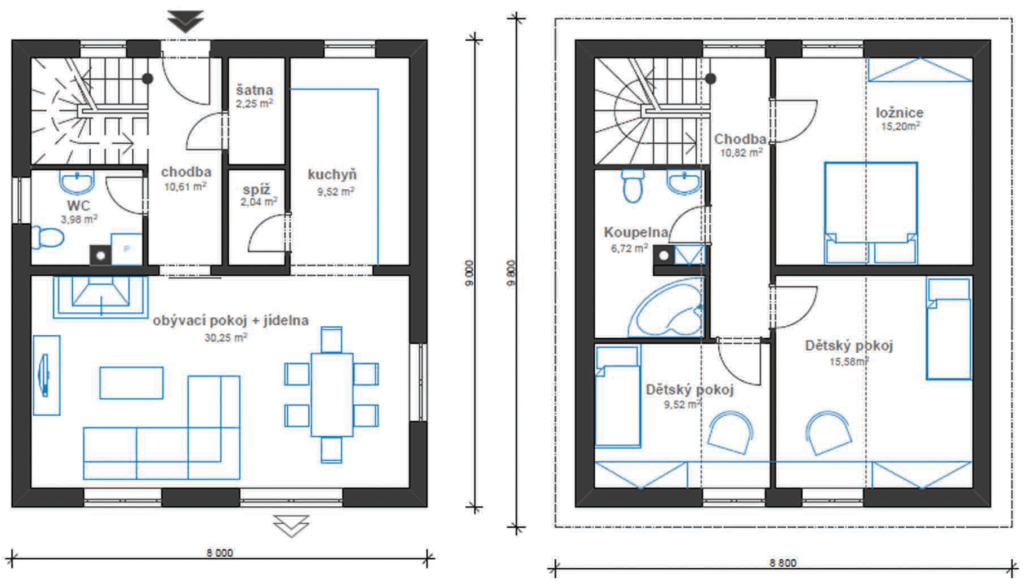
Dokonalý dvoupodlažní rodinný dům, kde naleznete vše potřebné. Díky patrovému rozdělení je rušná část domu oddělena od klidné, tímto si každý člen rodiny najde místo pro sebe. Dispozičně se jedná o 4+1. V přízemí se nachází prostorný obývací pokoj propojený s jídelnou a samostatná kuchyň se spíží. Dále vstupní chodba se šatnou, WC a schodiště. V obývacím pokoji se nachází vstup na terasu.

V druhém podlaží jsou propojeny chodbou ložnice, dva dětské pokoje a koupelna. Dům je vhodný pro 4-5 člennou rodinu. V domě je již příprava na krbová kamna, popřípadě krb. Součástí je venkovní parkovaní pro dvě vozidla.

Rodinný dům typ 6 - dispozice

Dispozice 4 + kk | Zastavěná plocha 70,4 m2 | Užitná plocha 116,49 m2 | Rozměry domu 8 x 8,80 m

Výměra domu

1.01chodba10,61 m2
1.02wc3,98 m2
1.03šatna2,25 m2
1.04spíž2,04 m2
1.05kuchyň9,52 m2
1.06obývací pokoj, jídelna30,25 m2
2.01chodba10,82 m2
2.02koupelna6,72 m2
2.03ložnice15,20 m2
2.04dětský pokoj15,58 m2
2.05dětský pokoj9,52 m2

Celková užitná plocha domu

116,49 m2

Nízkoenergetický provoz

Náklady na provoz domu 2.400 Kč/měsíc
Odpor při prostupu tepla 7.25 m2⋅K/W

Hodnoty jsou orientační dle průměrných údajů ohledně topení, koupání atd.

Co je zahrnuto v ceně domu

Nízkoenergetické domy

Díky provedení výstavby a výběru kvalitních materiálů naše domy vyhovují přísným požadavkům na energetickou náročnost.

Zázemí pro rodinu

Naše domy jsou ideálním místem 4-5 členné domácnosti, které ale vyhovují požadavkům nejen mladých rodin.

Nadstandardní vybavení a služby

Naše domy již ve standardu obsahují moderní a kvalitní vybavení, které však můžete v průběhu stavby upravit dle vlastních preferencí.

Rychlost výstavby

Vzhledem ke zkušenostem a sehranosti našich pracovníků probíhá výstavba našich domů rychlostí světla.

Napište nám




    Odesláním formuláře souhlasíte s podmínkami zpracování osobních údajů


    x