Rodinné domy na klíč

Rodinný dům typ 3

Jednopodlažní rodinný dům o dispozici 4+kk. Velikost domu je 104,5 m² vhodná pro 4-5 člennou rodinu. Jedná se o prostorný dům propojeným obývacím pokojem, kuchyní a jídelnou. Vnitřní dispozice – zádveří, chodba, obývací pokoj s kuchyní a jídelnou, ložnice, dva pokoje, koupelna, WC a technická místnost. V domě je již příprava na krbová kamna, popřípadě krb. Součástí je venkovní parkovaní pro dvě vozidla.

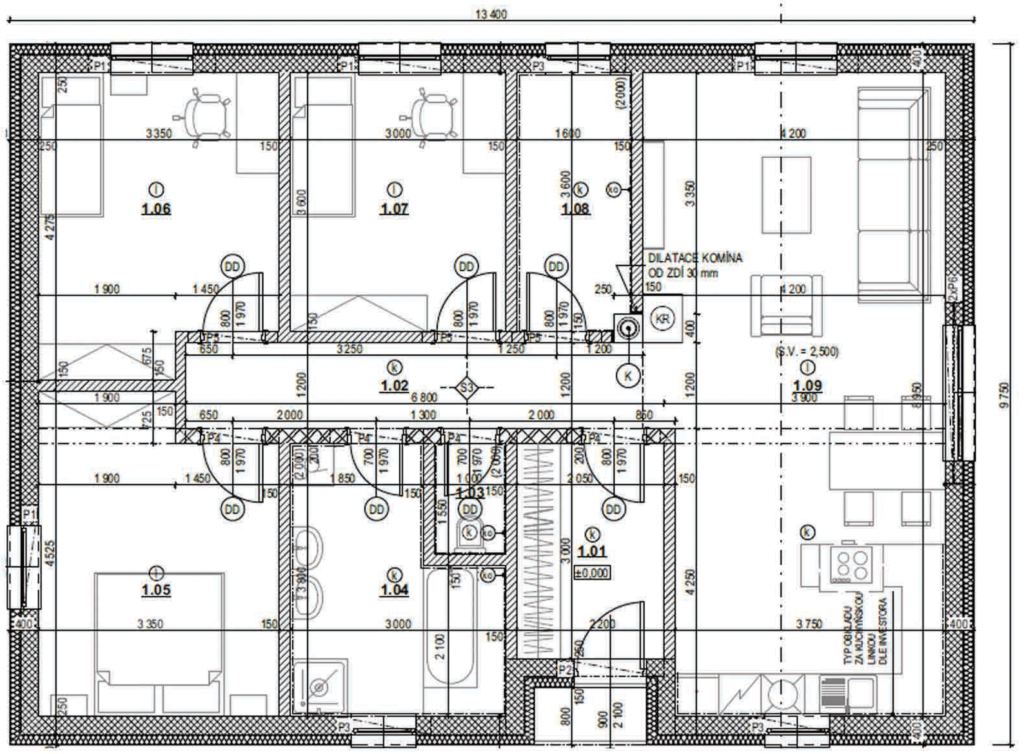
Rodinný dům typ 3 - dispozice

Dispozice 4 + kk | Zastavěná plocha 128 m2 | Užitná plocha 104,57 m2 | Rozměry domu 13,4 x 9,75 m

Výměra domu

1.01zádveří6,15 m2
1.02chodba7,62 m2
1.03wc1,55 m2
1.04koupelna9,45 m2
1.05ložnice14,11 m2
1.06pokoj13,34 m2
1.07pokoj10,80 m2
1.08technická místnost5,76 m2
1.09obývací pokoj + kk35,79 m m2

Celková užitná plocha domu

104,57 m2

Nízkoenergetický provoz

Náklady na provoz domu 2.400 Kč/měsíc
Odpor při prostupu tepla 7.25 m2⋅K/W

Hodnoty jsou orientační dle průměrných údajů ohledně topení, koupání atd.

Co je zahrnuto v ceně domu

Nízkoenergetické domy

Díky provedení výstavby a výběru kvalitních materiálů naše domy vyhovují přísným požadavkům na energetickou náročnost.

Zázemí pro rodinu

Naše domy jsou ideálním místem 4-5 členné domácnosti, které ale vyhovují požadavkům nejen mladých rodin.

Nadstandardní vybavení a služby

Naše domy již ve standardu obsahují moderní a kvalitní vybavení, které však můžete v průběhu stavby upravit dle vlastních preferencí.

Rychlost výstavby

Vzhledem ke zkušenostem a sehranosti našich pracovníků probíhá výstavba našich domů rychlostí světla.

Napište nám




    Odesláním formuláře souhlasíte s podmínkami zpracování osobních údajů


    x