Rodinné domy na klíč

Rodinný dům typ 2

Jednopodlažní rodinný dům s francouzskými okny podél slunné strany o dispozici 4+kk s terasou. Velikost domu je 105,4 m² vhodná pro 4-5 člennou rodinu. Jedná se o prostorný dům propojeným obývacím pokojem, kuchyní a jídelnou. Vnitřní dispozice – zádveří, chodba, obývací pokoj s kuchyní a jídelnou, ložnice, dva pokoje, koupelna, WC a technická místnost. V domě je již příprava na krbová kamna, popřípadě krb. Součástí je venkovní parkovaní pro dvě vozidla.

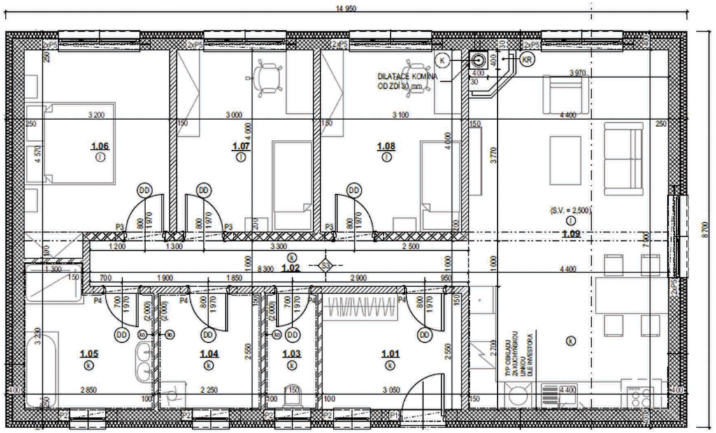
Rodinný dům typ 2 - dispozice

Dispozice 4 + kk | Zastavěná plocha 128 m2 | Užitná plocha 105,42 m2 | Rozměry domu 14,95 x 8,7 m

Výměra domu

1.01zádveří 7,78 m2
1.02chodba8,30 m2
1.03wc2,93 m2
1.04technická mísnost5,74 m2
1.05koupelna8,15 m2
1.06ložnice13,54 m2
1.07pokoj12,00 m2
1.08pokoj12,40 m2
1.09obývací pokoj + kk34,58 m2

Celková užitná plocha domu

105,42 m2

Nízkoenergetický provoz

Náklady na provoz domu 2.400 Kč/měsíc
Odpor při prostupu tepla 7.25 m2⋅K/W

Hodnoty jsou orientační dle průměrných údajů ohledně topení, koupání atd.

Co je zahrnuto v ceně domu

Nízkoenergetické domy

Díky provedení výstavby a výběru kvalitních materiálů naše domy vyhovují přísným požadavkům na energetickou náročnost.

Zázemí pro rodinu

Naše domy jsou ideálním místem 4-5 členné domácnosti, které ale vyhovují požadavkům nejen mladých rodin.

Nadstandardní vybavení a služby

Naše domy již ve standardu obsahují moderní a kvalitní vybavení, které však můžete v průběhu stavby upravit dle vlastních preferencí.

Rychlost výstavby

Vzhledem ke zkušenostem a sehranosti našich pracovníků probíhá výstavba našich domů rychlostí světla.

Napište nám




    Odesláním formuláře souhlasíte s podmínkami zpracování osobních údajů


    x