Rodinné domy na klíč

Rodinný dům typ 1

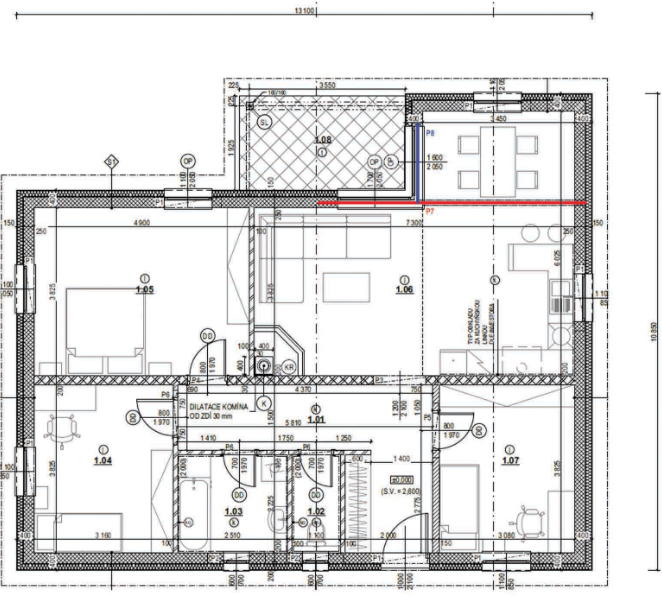
Nádherný, prostorný jednopodlažní a designově zajímavý rodinný dům o dispozici 4+kk s terasou. Velikost domu je 107,4 m² vhodná pro 4-5 člennou rodinu. Jedná se o prostorný dům s obývacím pokojem spojeným s kuchyní a propojeným koutem pro jídelnu. Z jídelny je vstup na terasu. Dále se v domě nacházejí zádveří, chodba, dva pokoje, ložnice, koupelna a WC. U domu je venkovní stání pro dvě vozidla.

V domě je již příprava na krbová kamna, popřípadě krb. Vzhledem se řadí mezi nejmodernější rodinné domy. Vhodný nejen pro mladé rodiny.

Rodinný dům typ 1 - dispozice

Dispozice 4 + kk | Zastavěná plocha 128 m2 | Užitná plocha 107,39 m2 | Rozměry domu 13,9 x 11,1 m

Výměra domu

1.01chodba13,30 m2
1.02wc2,45 m2
1.03koupelna5,58 m2
1.04pokoj12,09 m2
1.05ložnice18,74 m2
1.06obývací pokoj + kk35,33 m2
1.07pokoj11,78 m2
1.08terasa8,12 m2

Celková užitná plocha domu

107,39 m2

Nízkoenergetický provoz

Náklady na provoz domu 2.400 Kč/měsíc
Odpor při prostupu tepla 7.25 m2⋅K/W

Hodnoty jsou orientační dle průměrných údajů ohledně topení, koupání atd.

Co je zahrnuto v ceně domu

Nízkoenergetické domy

Díky provedení výstavby a výběru kvalitních materiálů naše domy vyhovují přísným požadavkům na energetickou náročnost.

Zázemí pro rodinu

Naše domy jsou ideálním místem 4-5 členné domácnosti, které ale vyhovují požadavkům nejen mladých rodin.

Nadstandardní vybavení a služby

Naše domy již ve standardu obsahují moderní a kvalitní vybavení, které však můžete v průběhu stavby upravit dle vlastních preferencí.

Rychlost výstavby

Vzhledem ke zkušenostem a sehranosti našich pracovníků probíhá výstavba našich domů rychlostí světla.

Napište nám




    Odesláním formuláře souhlasíte s podmínkami zpracování osobních údajů


    x